Kotwienie garażu blaszanego – jak poprawnie zamocować konstrukcję?
Kotwienie garażu blaszanego to jeden z najważniejszych etapów montażu, który w praktyce decyduje o bezpieczeństwie użytkowania i trwałości całej konstrukcji. Nawet najlepiej wykonany garaż nie będzie stabilny, jeśli nie zostanie prawidłowo przymocowany do podłoża. Niestety wielu inwestorów traktuje ten element jako formalność, co może prowadzić do poważnych problemów. Szczególnie przy silnym wietrze lub niestabilnym gruncie.
W tym artykule wyjaśniamy, dlaczego kotwienie blaszaka ma tak duże znaczenie, jakie podłoże wybrać, jakie kotwy do garażu blaszanego sprawdzają się najlepiej oraz jak prawidłowo przeprowadzić montaż, aby zapewnić maksymalną stabilność garażu blaszanego przez wiele lat.
Dlaczego kotwienie garażu blaszanego jest tak ważne?
Garaż blaszany, mimo swojej solidnej konstrukcji, jest stosunkowo lekkim obiektem budowlanym. Oznacza to, że bez odpowiedniego zakotwienia może zostać przesunięty, podniesiony lub nawet przewrócony przez silny wiatr. Zjawisko to nie jest rzadkością. Szczególnie w otwartych przestrzeniach, gdzie podmuchy powietrza działają na ściany i dach z dużą siłą.
Prawidłowe mocowanie garażu blaszanego pełni kilka kluczowych funkcji. Przede wszystkim zabezpiecza konstrukcję przed przemieszczaniem się, chroni ją przed odkształceniami oraz ogranicza drgania, które mogą z czasem osłabiać połączenia śrubowe. Dodatkowo właściwe kotwienie zmniejsza ryzyko uszkodzeń podłoża i fundamentu.
Nie bez znaczenia jest także kwestia odpowiedzialności prawnej. Właściciel nieruchomości odpowiada za bezpieczeństwo obiektów znajdujących się na jego działce. Jeżeli źle zamocowany garaż ulegnie przemieszczeniu i spowoduje szkody, konsekwencje mogą być poważne.
Dlatego kotwienie garażu blaszanego nie powinno być traktowane jako opcjonalny dodatek, lecz jako integralny element montażu.
Rodzaje fundamentów i podłoży pod garaż blaszany

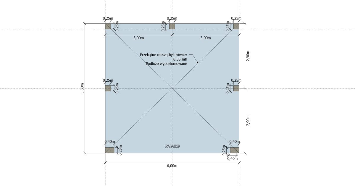
Stabilność garażu blaszanego zaczyna się od odpowiedniego podłoża. Fundament pod garaż blaszany powinien być równy, nośny i odporny na osiadanie. Od jakości podłoża zależy skuteczność zastosowanych kotew oraz trwałość całej konstrukcji.
Najczęściej stosowanym rozwiązaniem jest wylewka betonowa lub płyta fundamentowa. Zapewnia ona równomierne rozłożenie obciążeń i pozwala na zastosowanie kotew mechanicznych lub chemicznych o wysokiej wytrzymałości. Betonowe podłoże jest szczególnie rekomendowane w przypadku większych garaży oraz konstrukcji z dodatkowymi elementami, takimi jak wiata czy brama segmentowa.
Alternatywą są prefabrykowane płyty betonowe lub bloczki fundamentowe. To rozwiązanie tańsze i szybsze w wykonaniu, jednak wymaga bardzo starannego wypoziomowania. W przypadku takiego podłoża niezwykle ważne jest odpowiednie rozmieszczenie punktów kotwienia, aby uniknąć punktowych przeciążeń.
Rzadziej spotyka się montaż bezpośrednio do kostki brukowej lub gruntu. Choć technicznie jest to możliwe, nie zapewnia optymalnej stabilności garażu blaszanego. W takich sytuacjach często konieczne jest wykonanie dodatkowych stóp fundamentowych pod narożnikami konstrukcji.
Wybór odpowiedniego fundamentu pod garaż blaszany powinien być dostosowany do wielkości konstrukcji, warunków gruntowych oraz lokalnych warunków pogodowych. Inne wymagania będzie miał kompaktowy garaż blaszany 3×5, a inne większy garaż blaszany 6×6, który generuje większe obciążenia i wymaga solidniejszego zakotwienia.
Metody kotwienia garażu blaszanego
Dobór odpowiedniej metody kotwienia zależy przede wszystkim od rodzaju podłoża oraz przewidywanych obciążeń. Na rynku stosuje się kilka sprawdzonych rozwiązań, które różnią się sposobem montażu oraz parametrami wytrzymałościowymi.
Najczęściej wykorzystywane są:
- kotwy mechaniczne rozporowe, montowane bezpośrednio w betonie,
- kotwy chemiczne, zapewniające bardzo wysoką nośność,
- wkręty konstrukcyjne stosowane przy montażu do podłoży drewnianych,
- specjalne śruby fundamentowe osadzane w świeżym betonie.
Kotwy do garażu blaszanego powinny być wykonane ze stali ocynkowanej lub nierdzewnej, co zabezpiecza je przed korozją. W praktyce przy standardowych garażach wolnostojących najczęściej stosuje się kotwy mechaniczne, które zapewniają odpowiednią wytrzymałość przy stosunkowo prostym montażu.
Kotwy chemiczne są rozwiązaniem bardziej zaawansowanym i stosuje się je w sytuacjach, gdy podłoże ma niższą jakość lub gdy konstrukcja narażona jest na zwiększone obciążenia wiatrem.
Jak prawidłowo zamocować garaż blaszany do podłoża?
Prawidłowe kotwienie blaszaka wymaga dokładności i przestrzegania kilku zasad technicznych. Przede wszystkim konstrukcja musi zostać idealnie wypoziomowana przed rozpoczęciem wiercenia otworów pod kotwy. Nawet niewielkie odchylenia mogą powodować naprężenia w ramie garażu.
Otwory pod kotwy powinny być wykonane zgodnie z zaleceniami producenta, zarówno pod względem średnicy, jak i głębokości. Zbyt płytkie osadzenie zmniejsza wytrzymałość mocowania, natomiast zbyt duże może osłabić strukturę betonu.

Po osadzeniu kotew należy dokręcić je z odpowiednią siłą, unikając nadmiernego naprężenia konstrukcji. Ważne jest również równomierne rozmieszczenie punktów mocowania. Zazwyczaj stosuje się kotwienie w narożnikach oraz w kilku dodatkowych punktach wzdłuż ścian.
Dobrą praktyką jest kontrola mocowań po kilku tygodniach użytkowania, szczególnie po intensywnych opadach lub silnym wietrze. Pozwala to upewnić się, że stabilność garażu blaszanego nie została naruszona.
Najczęstsze błędy przy kotwieniu i jak ich unikać
Jednym z najczęstszych błędów jest całkowity brak kotwienia lub zastosowanie zbyt małej liczby punktów mocujących. Taka oszczędność może prowadzić do poważnych uszkodzeń konstrukcji już przy pierwszych silniejszych podmuchach wiatru.
Kolejnym problemem jest montaż do niestabilnego podłoża, np. nieutwardzonego gruntu. Nawet najlepsze kotwy do garażu blaszanego nie zapewnią odpowiedniej trwałości, jeśli fundament pod garaż blaszany nie będzie odpowiednio przygotowany.
Błędem jest także stosowanie elementów niskiej jakości, podatnych na korozję. Z czasem osłabione śruby mogą utracić swoje właściwości, co negatywnie wpływa na mocowanie garażu blaszanego.
Warto pamiętać, że prawidłowe kotwienie to inwestycja w bezpieczeństwo i długowieczność konstrukcji.
FAQ – najczęściej zadawane pytania o kotwienie garażu blaszanego
Czy kotwienie garażu blaszanego jest obowiązkowe?
Choć przepisy nie zawsze precyzują szczegółowe wymagania techniczne w tym zakresie, w praktyce kotwienie jest konieczne dla zapewnienia bezpieczeństwa. Brak mocowania znacząco obniża stabilność garażu blaszanego i zwiększa ryzyko uszkodzeń.
Jakie kotwy do garażu blaszanego są najlepsze?
Najczęściej stosuje się kotwy mechaniczne rozporowe przeznaczone do betonu, ponieważ zapewniają dobrą nośność i łatwy montaż. W przypadku słabszego podłoża warto rozważyć kotwy chemiczne o wyższej wytrzymałości.
Czy można zamocować garaż blaszany do kostki brukowej?
Technicznie jest to możliwe, ale nie zapewnia optymalnej stabilności konstrukcji. Znacznie lepszym rozwiązaniem jest wykonanie wylewki betonowej lub punktowych fundamentów pod narożnikami garażu.
Ile punktów kotwienia powinien mieć garaż blaszany?
Liczba punktów zależy od wielkości konstrukcji, jednak standardowo stosuje się mocowanie w narożnikach oraz dodatkowe kotwy wzdłuż ścian. Im większy garaż, tym więcej punktów mocujących powinno zostać zastosowanych.
Czy garaż blaszany bez kotwienia może zostać przewrócony przez wiatr?
Tak, szczególnie w przypadku lekkich konstrukcji ustawionych na otwartej przestrzeni. Silne podmuchy mogą doprowadzić do przemieszczenia lub przewrócenia niezakotwionego obiektu.
Czy producent garażu powinien zapewnić usługę kotwienia?
Profesjonalne firmy montażowe zazwyczaj oferują usługę kotwienia jako element instalacji. Warto upewnić się przed zakupem, czy mocowanie garażu blaszanego jest wliczone w cenę montażu.
Warto także przeczytać
Sprawdź, co u nas słychać
Chcesz być na bieżąco z Modern Garage? Tutaj znajdziesz wszystkie aktualności i nowości prosto z naszej firmy! Dowiedz się o ważnych wydarzeniach i zmianach w naszej ofercie.
Masz pytania? Chcesz poznać ofertę? Skontaktuj sięz nami!
Potrzebujesz porady, wyceny lub chcesz dowiedzieć się więcej o naszych garażach i halach? Nasi fachowcy chętnie odpowiedzą na wszystkie Twoje pytania i pomogą znaleźć idealne rozwiązanie. Nie czekaj, skontaktuj się z nami.
Napisz do nas na
info@modern-garage.pl